Neue Wohnungen im Bezirk Affoltern
Wohnen im Campus Rauchmatt
PROJEKT-BESCHREIBUNG
Neubau-Wohnungen UND Reihenhäuser
Ob Sie nach einem geräumigen Familienhaus, einer gemütlichen Wohnung für Singles oder Paare oder einer Investitionsmöglichkeit suchen, hier finden Sie die perfekte Immobilie. Die hochwertige Ausstattung, großzügige Grundrisse und innovative Designelemente schaffen eine Atmosphäre des Wohlbefindens und der Ästhetik.
Brauchen Sie direkt um die Ecke eine Einkaufsmöglichkeit oder ein Büro für Homeoffice? Entdecken Sie die Möglichkeiten, die der Campus Rauchmatt sonst noch bereithält, und lassen Sie sich von den vielfältigen Optionen begeistern. Wir laden Sie herzlich ein, uns zu kontaktieren und mehr über unseren Campus zu erfahren.
Architektur
Die nachhaltige Bauweise und moderne Technologien sorgen für Energieeffizienz und Umweltfreundlichkeit, was nicht nur die Betriebskosten senkt, sondern auch zu einem bewussten und nachhaltigen Lebensstil beiträgt.
Die Lage
Die Lage des Campus Rauchmatt in Hausen am Albis ist zweifellos eine der herausragenden Eigenschaften dieses aussergewöhnlichen Wohn- und Gewerbeareals. Hausen am Albis, eine charmante Gemeinde im Kanton Zürich, bietet die perfekte Kulisse für ein erfülltes Leben in der Nähe der Stadt und der Natur.
Die Gemeinde Hausen am Albis verfügt über eine gut ausgebaute Infrastruktur, darunter Schulen, Geschäfte und Freizeiteinrichtungen. Die Bewohner haben auch Zugang zu zahlreichen Wander- und Radwegen, die sich durch die umliegende Landschaft und das Naherholungsgebiet Türlersee schlängeln und die Möglichkeit bieten, die Natur in vollen Zügen zu genießen.
DAS ANGEBOT
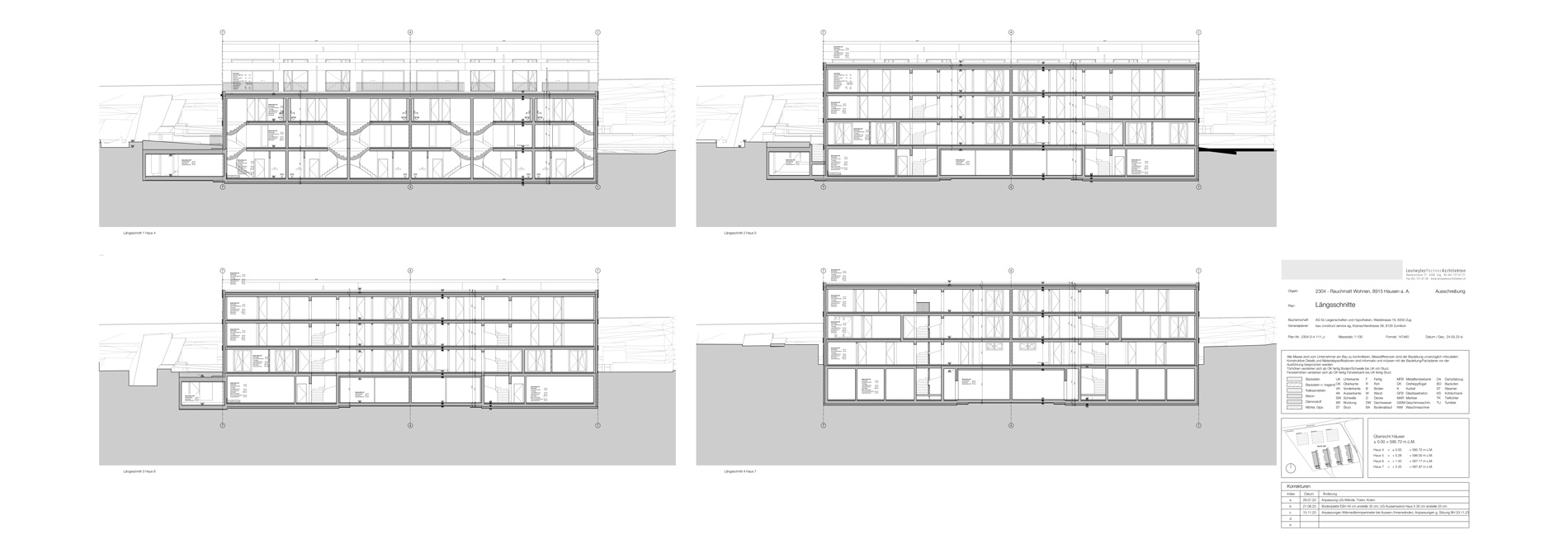
Die Wohnhäuser sind so angeordnet, dass die Reiheneinfamilienhäuser in vorderster Reihe von einer freien, unverbaubaren Sicht auf Felder, Natur und Berge profitieren. Dahinter befinden sich drei Mehrfamilienhäuser mit einem klar gegliederten und modernen Wohnkonzept.
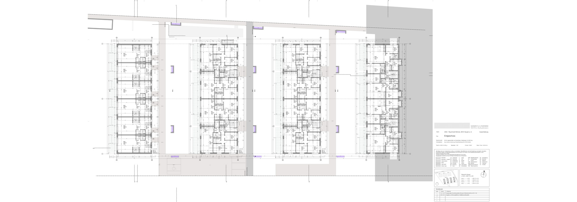
In den drei Mehrfamilienhäusern entstehen pro Gebäude 12 Wohnungen, verteilt auf drei Geschosse mit jeweils vier Wohneinheiten pro Etage. Insgesamt umfasst das Angebot 18 3 1/2-Zimmer-Wohnungen sowie 18 4 1/2-Zimmer-Wohnungen. Damit richtet sich das Projekt sowohl an Paare und kleinere Haushalte als auch an Familien mit grösserem Platzbedarf.
Ergänzt wird das Angebot durch 6 Reiheneinfamilienhäuser zum Kauf, die ein eigenständiges Wohnerlebnis mit viel Privatsphäre und unmittelbarem Bezug zum Aussenraum bieten. So vereint der Campus Rauchmatt unterschiedliche Wohnbedürfnisse in einem stimmigen und hochwertigen Gesamtprojekt.
Über die interaktive Übersicht erhalten Interessierte einen direkten Einblick in die einzelnen Häuser, Wohnungstypen und verfügbaren Einheiten.
DOWNLOADS
Hier finden Sie alle relevanten Unterlagen zum Wohnangebot am Campus Rauchmatt übersichtlich zusammengestellt. Dazu gehören Informationen zu den Wohnungen und Reihenhäusern, Grundrisse, Dokumentationen sowie weiterführende Projektunterlagen. So können Sie sich in Ruhe einen umfassenden Überblick verschaffen und die für Sie passende Wohneinheit entdecken.
Impressionen
Der Campus Rauchmatt liegt in einer Umgebung, die durch Natur, Weite und hohe Lebensqualität geprägt ist. Die Impressionen aus Hausen am Albis und der Region vermitteln einen Eindruck davon, was diesen Standort so besonders macht: grüne Landschaften, attraktive Naherholungsgebiete und ein charmantes Dorfleben mit guter Anbindung an die umliegenden Städte. Hier wohnen Sie an einem Ort, der Ruhe, Alltag und Freizeit auf angenehme Weise zusammenführt.
Vorteile im Überblick
Alles in Gehweite
In Hausen am Albis finden Sie alles, was Sie für den täglichen Bedarf benötigen. Lokale Geschäfte, Supermärkte, Schulen und Gesundheitseinrichtungen sind bequem zu Fuss erreichbar und bieten Ihnen einen stressfreien Lebensstil.
Gleich in der Stadt
Für diejenigen, die die Annehmlichkeiten der Stadt schätzen, sind Zug oder Zürich nur eine kurze Fahrt entfernt. Die ausgezeichnete Anbindung an den öffentlichen Verkehr ermöglicht es den Bewohnern, die kosmopolitische Atmosphäre der umliegenden Städte zu genießen, sei es für berufliche Zwecke, kulturelle Erlebnisse oder kulinarische Entdeckungen.
Arbeiten über die Strasse
Der Campus Rauchmatt bietet Ihnen zusätzlich zur Wohnung die Möglichkeit, Ihr Büro, Ihren Gewerbebetrieb oder Ihren Homeoffice-Platz innerhalb von 100 Schritten zu erreichen. Geniessen Sie die Annehmlichkeit des Eigenen Büros und die gleichzeitige Nähe zu Ihrer Familie.
Naturnähe
Die unmittelbare Umgebung des Campus Rauchmatt ist von atemberaubender Schönheit geprägt. Sie werden die Ruhe und Frische der umliegenden Wälder, Felder und Hügel genießen können. Die Gegend eignet sich hervorragend für Outdoor-Aktivitäten wie Wandern, Radfahren und Joggen. Die Nähe zum Albispass und zum Zugersee eröffnet weitere Freizeitmöglichkeiten wie Wassersport und Entspannung am Ufer.
Zusammenhalt im Campus
Unabhängig davon, ob Sie sich für eine Mietwohnung oder ein Reihenhaus zum Kauf entscheiden, werden Sie Teil einer lebendigen und aufstrebenden Gemeinschaft sein. Der Campus Rauchmatt fördert das Miteinander und bietet die Möglichkeit, sich mit anderen Bewohnern auszutauschen und gemeinsame Aktivitäten zu genießen.
Ihre Anfrage
Beratung & Verkauf
Gianesi + Hofmann AG
Küsnachterstrasse 38
8126 Zumikon

